Haus B, Friedberg
An der Stadtmauer / Ensemblebereich

Umbau Einfamilienhaus
innen bis auf Rohbauzustand:

  • neue Haustechnik
  • neue Grundrissorganisation
  • neue Fenster
  • neue Fußbodenheizung mit Beläge
  • Küche + Bad neu
  • neues Design Treppe
  • Balkonerweiterung
« zurück zur Übersicht

Komplettsanierung im Ensemblebereich der Stadtmauer Friedberg 2023

 

Komplettsanierung im Ensemblebereich der Stadtmauer Friedberg 2023

 

Komplettsanierung im Ensemblebereich der Stadtmauer Friedberg 2023

 

Komplettsanierung im Ensemblebereich der Stadtmauer Friedberg 2023

 

Komplettsanierung im Ensemblebereich der Stadtmauer Friedberg 2023

 

Komplettsanierung im Ensemblebereich der Stadtmauer Friedberg 2023

 

Komplettsanierung im Ensemblebereich der Stadtmauer Friedberg 2023

 

Komplettsanierung im Ensemblebereich der Stadtmauer Friedberg 2023

 

Komplettsanierung im Ensemblebereich der Stadtmauer Friedberg 2023

 

 

Bestand

Komplettsanierung im Ensemblebereich der Stadtmauer Friedberg 2023

 

Komplettsanierung im Ensemblebereich der Stadtmauer Friedberg 2023

 

Komplettsanierung im Ensemblebereich der Stadtmauer Friedberg 2023

 

Komplettsanierung im Ensemblebereich der Stadtmauer Friedberg 2023

 

Komplettsanierung im Ensemblebereich der Stadtmauer Friedberg 2023

 

Bauphase

Komplettsanierung im Ensemblebereich der Stadtmauer Friedberg 2023 - Bauphase

 

Komplettsanierung im Ensemblebereich der Stadtmauer Friedberg 2023 - Bauphase

 

Komplettsanierung im Ensemblebereich der Stadtmauer Friedberg 2023 - Bauphase

 

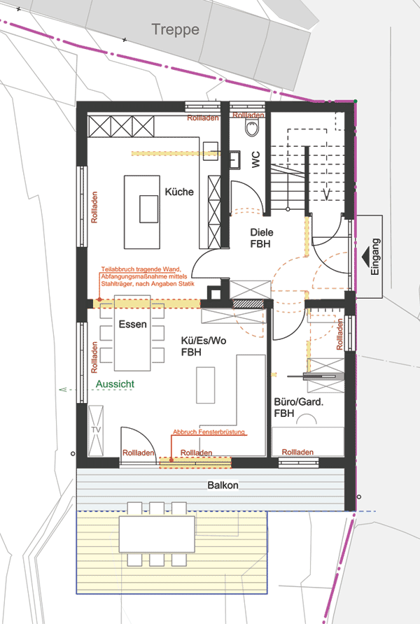
Planunterlagen

Komplettsanierung im Ensemblebereich der Stadtmauer Friedberg 2023 - Bauphase

 

Komplettsanierung im Ensemblebereich der Stadtmauer Friedberg 2023 - Bauphase