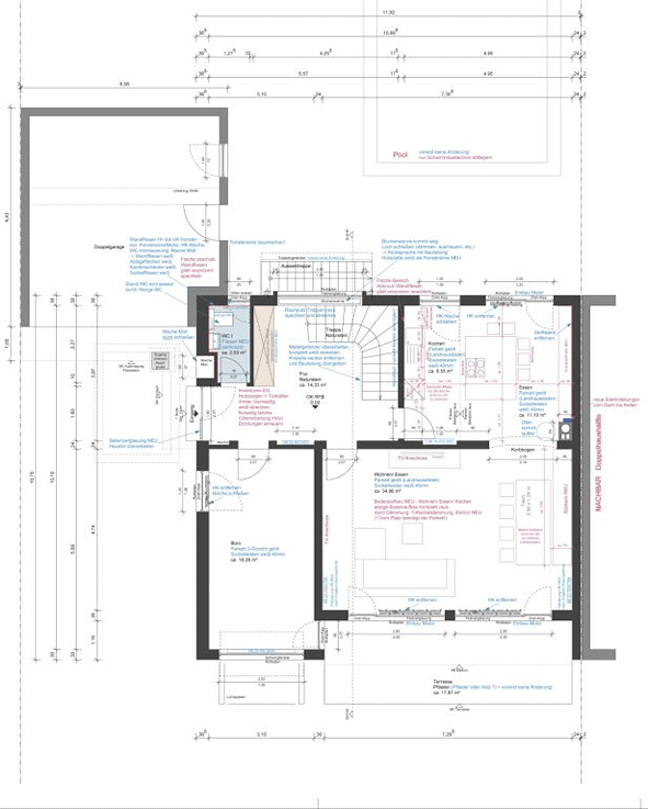
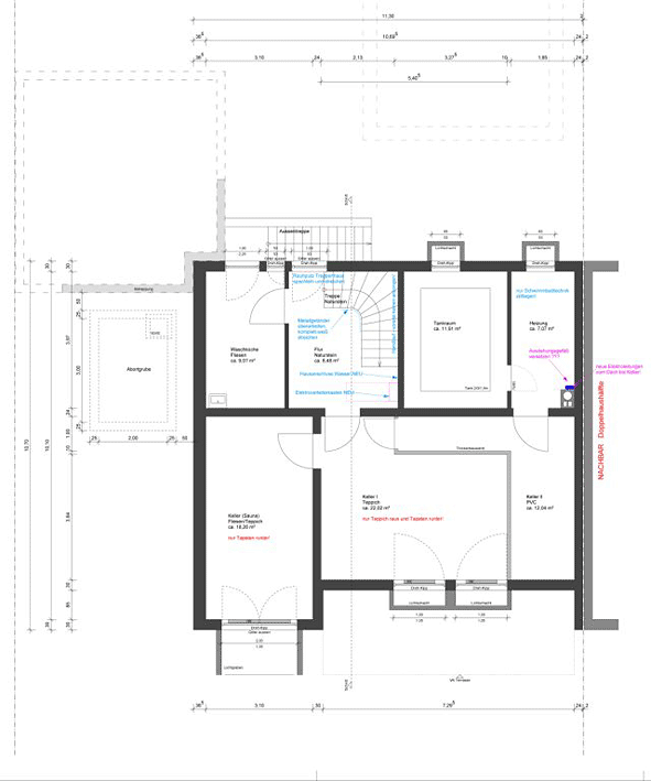
Umbau einer Doppelhaushälfte
Hochzoll

  • Erneuerung der Sanitär- und Elektro-Installation
  • Neue und zusätzliche Sanitäreinrichtungen
  • Neue Bodenbeläge, Fliesen, Tapeten
  • Überarbeitung der Oberflächen durch Schreiner und Maler
  • Neuorganisation und öffnen der Grundrisse
  • Neue Verglasung in Bestandsfenster
  • Neue Dachflächenfenster

Referenzschreiben »

 

« zurück zur Übersicht

 

Vorher - Nachher

Umbau einer Doppelhaushälfte in Hochzoll 2015 - hicker architekten Friedberg

 

Umbau einer Doppelhaushälfte in Hochzoll 2015 - hicker architekten Friedberg

 

Umbau einer Doppelhaushälfte in Hochzoll 2015 - hicker architekten Friedberg

 

Umbau einer Doppelhaushälfte in Hochzoll 2015 - hicker architekten Friedberg

 

Umbau einer Doppelhaushälfte in Hochzoll 2015 - hicker architekten Friedberg

 

Umbau einer Doppelhaushälfte in Hochzoll 2015 - hicker architekten Friedberg

 

Planung

Schnitt

Erdgeschoss

 

Obergeschoss

 

Dachgeschoss

 

Kellergeschoss