Umbau eines Reihenhauses
Haus 23

  • Energetische Sanierung (Austausch Fenster, Dämmung Dach, Fassadenverkleidung)
  • Dachausbau
  • Erneuerung der Sanitär- und Elektro-Installation
  • Außenanlagen
  • Möbelplanung

Referenzschreiben »

Thomas Wechs Preis 2015
Prämierung

Architektouren 2014
Ausgewähltes Projekt

Im Buch: Reihenhäuser modernisieren 2016
• Im Buch: Kleine Gärten, leicht zu pflegen 2014
Casamia Magazin Ausgabe 3/2015: Sensibler Umbau
mein Eigenheim Magazin Ausgabe 3/2015: Wohnreportage

« zurück zur Übersicht

Casamia Magazin Haus 23

Casamia Magazin Haus 23

Casamia Magazin Haus 23

 


Ausgezeichneter Umbau Haus 23 durch hicker architekten 2013

Strassenfassade

hicker architekten friedberg : wohnbau umbau erweiterung 2013

 

hicker architekten friedberg : wohnbau umbau erweiterung 2013

 

hicker architekten friedberg : wohnbau umbau erweiterung 2013

 

hicker architekten friedberg : wohnbau umbau erweiterung 2013

 

Gartenfassade

hicker architekten friedberg : wohnbau umbau erweiterung 2013

 

hicker architekten friedberg : wohnbau umbau erweiterung 2013

 

hicker architekten friedberg : wohnbau umbau erweiterung 2013

 

Balkon

hicker architekten friedberg : wohnbau umbau erweiterung 2013

 

hicker architekten friedberg : wohnbau umbau erweiterung 2013

 

Wohnbereich

hicker architekten friedberg : wohnbau umbau erweiterung 2013

 

hicker architekten friedberg : wohnbau umbau erweiterung 2013

 

hicker architekten friedberg : wohnbau umbau erweiterung 2013

 

hicker architekten friedberg : wohnbau umbau erweiterung 2013

 

Küche

hicker architekten friedberg : wohnbau umbau erweiterung 2013

 

hicker architekten friedberg : wohnbau umbau erweiterung 2013

 

Bad I

hicker architekten friedberg : wohnbau umbau erweiterung 2013

 

hicker architekten friedberg : wohnbau umbau erweiterung 2013

 

hicker architekten friedberg : wohnbau umbau erweiterung 2013

 

hicker architekten friedberg : wohnbau umbau erweiterung 2013

 

Arbeiten

hicker architekten friedberg : wohnbau umbau erweiterung 2013

 

hicker architekten friedberg : wohnbau umbau erweiterung 2013

 

hicker architekten friedberg : wohnbau umbau erweiterung 2013

 

Kind

hicker architekten friedberg : wohnbau umbau erweiterung 2013

 

Bad II

hicker architekten friedberg : wohnbau umbau erweiterung 2013

 

hicker architekten friedberg : wohnbau umbau erweiterung 2013

 

Dach

hicker architekten friedberg : wohnbau umbau erweiterung 2013

 

hicker architekten friedberg : wohnbau umbau erweiterung 2013

 

Bibliothek

hicker architekten friedberg : wohnbau umbau erweiterung 2013

 

hicker architekten friedberg : wohnbau umbau erweiterung 2013

 

Schlafen

hicker architekten friedberg : wohnbau umbau erweiterung 2013

 

hicker architekten friedberg : wohnbau umbau erweiterung 2013

 

hicker architekten friedberg : wohnbau umbau erweiterung 2013

 

hicker architekten friedberg : wohnbau umbau erweiterung 2013

 

hicker architekten friedberg : wohnbau umbau erweiterung 2013

 

Vorher - Nachher

hicker architekten friedberg : wohnbau umbau erweiterung 2013

 

hicker architekten friedberg : wohnbau umbau erweiterung 2013

 

hicker architekten friedberg : wohnbau umbau erweiterung 2013

 

hicker architekten friedberg : wohnbau umbau erweiterung 2013

 

hicker architekten friedberg : wohnbau umbau erweiterung 2013

 

hicker architekten friedberg : wohnbau umbau erweiterung 2013

 

Baustelle

hicker architekten friedberg : wohnbau umbau erweiterung 2013

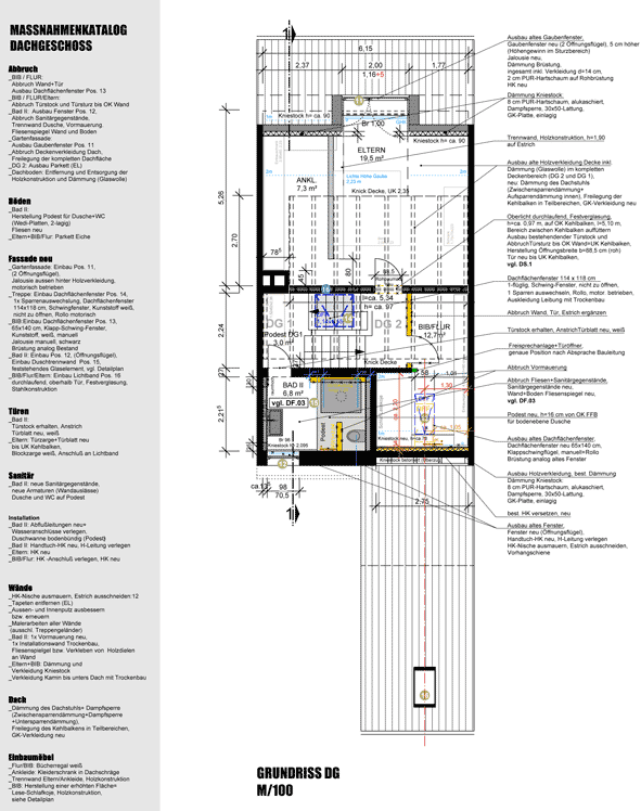
Massnahmenkatalog

hicker architekten friedberg : wohnbau umbau erweiterung 2013

 

hicker architekten friedberg : wohnbau umbau erweiterung 2013

 

hicker architekten friedberg : wohnbau umbau erweiterung 2013