Umbau und Erweiterung Kinderarztpraxis Dr. Henneberger, Neuburger Straße, Augsburg

Planungsaufgabe:

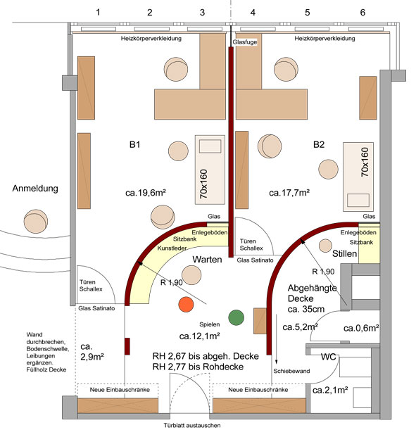
  • Unterteilen des bestehenden Großraumes in zwei Behandlungszimmer, einen Wartebereich und eine „ruhige“ Ecke für stillende Mütter
  • Anbinden der zusätzlichen Räumlichkeiten an die Bestandspraxis
  • Kompletter Entwurf und Umsetzung der Ausstattung (Möblierung, Heizkörperverkleidung…)

Referenzschreiben »

Presseartikel Architektur Premium 3/2013 »


« zurück zur Übersicht

 

 

 

 

 

 

 

 

 

Grundriss

Erste Ideenskizze

 

hicker friedberg gewerbebau anbau ausstellung büro

Bestand 1

 

 

Bestand 2